︎
THESIS
INDEX
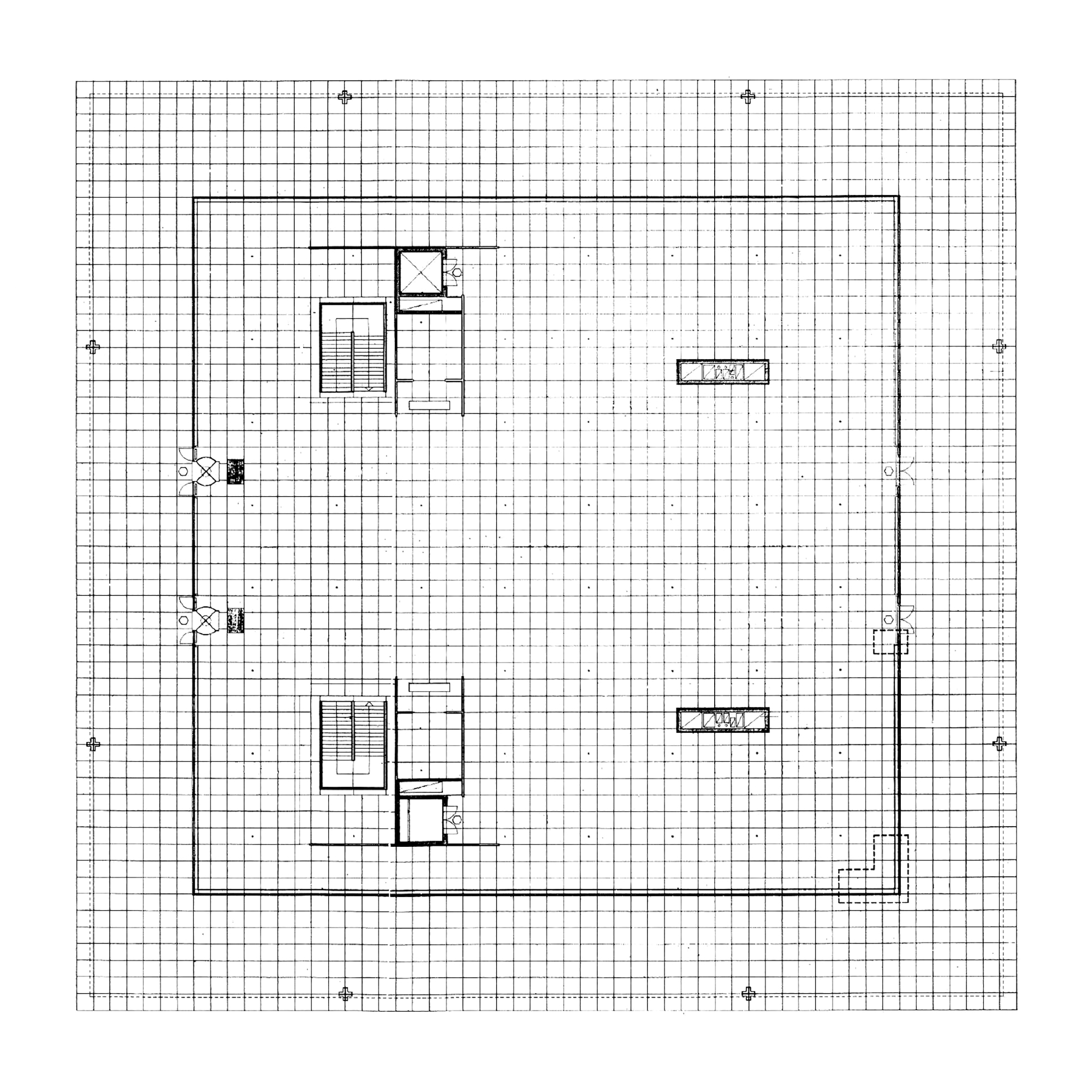
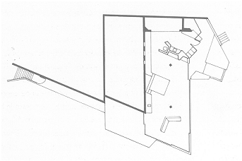
—FORM
—CASE STUDIES
DIAGRAMS
MOUND
WATCH
READ
Nick Gochnour
DO
NOT
ENTER
2021.MOUND
︎︎︎
xxxxxxxxxxxxxxxxxxxxxxxxxxxxxxxxxxxxxxxxxxxxxxxxxxx
Presenting an Archive
An exploration on roofs and other various expansive structures or landform buildings.